Listing Office: Marketplace Sotheby's Intl Rty Northwest Multiple Listing Service Logo

25601 Se 30th Street, Sammamish, WA

$1,895,000

Previous Next

0.33

Acres

About 25601 Se 30th Street

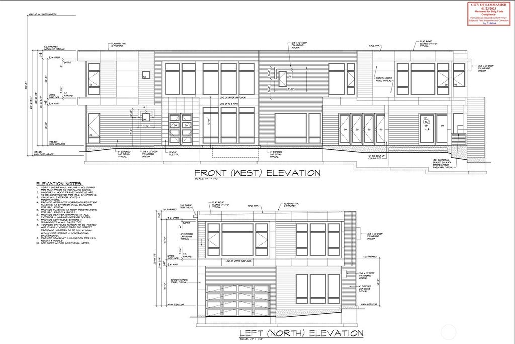
SAMMAMISH CITY Approved Building Permit Ready to build massive 4999 SQ FT house on a huge 0.33 acre lot. Bring your builder and imagination to build this pre-approved contemporary design. Great schools and community.

Features of 25601 Se 30th Street

MLS® # 2412764
Price $1,895,000
Bathrooms 0.00
Acres 0.33
Type Lot/Land
Sub-Type Land
Status Active

Community Information

Address 25601 Se 30th Street
Area 540 - East of Lake Sammamish
Subdivision Klahanie
City Sammamish
County King
State WA
Zip Code 98075

Amenities

Is Waterfront No

Interior

Fireplace No

Exterior

Lot Description Corner Lot

School Information

District Issaquah
Elementary Challenger Elem
Middle Beaver Lake Mid
High Skyline High

Additional Information

Days on Market 78
Cumulative Days on Market 78
Days on Website 78
Foreclosure No
Short Sale No
RE / Bank Owned No

Listing Details

OfficeMarketplace Sotheby's Intl Rty

Listing Map

Request a Showing

Provide a valid email address.
When would you like to view this property?